中古物件見学(本母町)
~当社所有の中古物件をご覧いただけます~
| 開催日 | |
|---|---|
| 開催時間 | 10:00~17:00 |
| 開催場所 | 高山市本母町 |
| 参加受付状況 | 受付中 |
高山市本母町の中古住宅のご紹介です。
物件価格:940万円
土地面積:160.80㎡
延床面積:110.95㎡(1階66.24㎡ 2階44.71㎡)
築年月:平成6年2月
土地権利:所有権
地目:宅地
地勢:平坦
接道:南側 接面:10.8m 幅員:4m
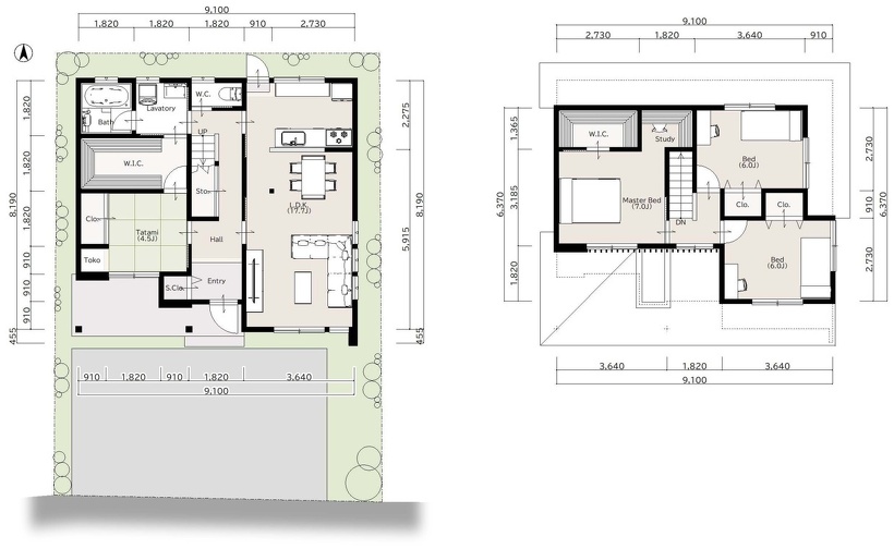
間取り:5DK
駐車可能台数:4台
高山駅徒歩39分
閑静な住宅街にあり、日当たり良好。内装も丁寧に使用されており、すぐにお住まいいただけます。
当物件をリノベーションしてお引渡しも可能です。
【外観完成イメージ】
有機的デザインにリノベーション。
大きな窓や水平ラインを活かし、室内から庭や景観が自然に繋がるデザイン。
開放的な室内空間を作る「オープンプラン」を採用。
従来の日本の住宅やヨーロッパの建物のように部屋を細かく仕切らず、流動的でつながりのある空間を実現。
光や風の流れを意識した設計。
「暮らし方」や「自然との関係性」が魅力的な住まいに生まれ変わります。
リノベーション価格2,500万円~
【リノベーション間取り図】
内装を自然素材へリフォームも承っております。
【室内完成イメージ】
自然素材の内装がもたらす上質な暮らし
住まいの内装に自然素材を選ぶことは、単なる仕上げの選択ではなく、暮らしの質そのものを高める選択です。
自然素材は、身体にやさしく安心です。木材や漆喰、珪藻土といった素材は、化学物質の発散が少なく、健やかな空気環境を育みます。さらに、素材そのものが持つ調湿作用により、四季を通して室内を快適に保ち、カビやダニの発生を抑えてくれます。
また、自然素材は五感に心地よさをもたらします。木のぬくもりある肌触りや、漆喰のやわらかな質感は、日常の何気ないひとときを優しく包み込みます。音をやわらげ、空気を清らかに整える作用もあり、深い安らぎを感じられる空間が生まれます。
さらに、その美しさも格別です。木目や石の模様は二つとして同じものがなく、住まいに唯一無二の表情を与えます。年月とともに色艶が変化し、時を重ねるほどに増す味わいは、暮らしに深みと豊かさを添えてくれます。
内装自然素材リフォーム+水まわり交換 1,000万円~
薪ストーブ導入も可能です
薪ストーブの炎は、単なる暖房を超えた心地よさを与えてくれます。パチパチと薪がはぜる音、やわらかく揺らめく炎の光、じんわりと身体を包み込むやさしい暖かさ。それは人の心に安らぎをもたらし、家族が自然と集まる温かな空間をつくり出します。
また、薪ストーブの暖かさは、部屋全体をじんわりと温めるため、快適で健康的な室内環境を保ちます。さらに、天板を使ってお湯を沸かしたり、料理を楽しんだりと、暮らしの幅を広げてくれるのも魅力です。
薪ストーブ導入 150万円~(高山市から10万円補助有り)
※当物件の見学は予約制となっております。下記予約フォームよりご予約願います。
※ご案内スタッフよりメールにてご返信させて頂きます。






