自然素材の規格住宅 平屋(ゆらぎ)シリーズ
- カテゴリー:
- 自然素材の規格住宅
かさはらの自然素材の規格住宅 2021年11月リリース
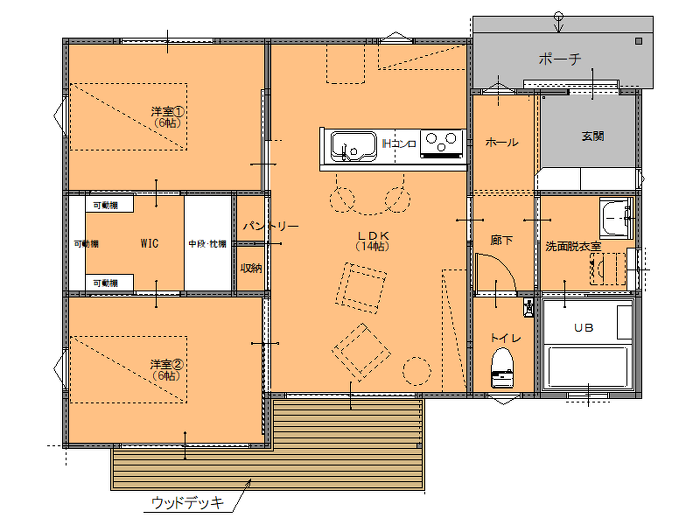
平屋 (2LDKタイプ)
かさはらの家では、より多くのお客様に「かさはらの家=自然素材の家」の良さを知って頂くため、2021年11月から自然素材の規格住宅をご用意させていただきました。
今回の商品は「ゆらぎ」というシリーズの「平屋」タイプの住宅です。
子育て卒業世代の方や趣味などを楽しむアクティブシニア様向けのコンパクトですが、かさはらの家のスタイルやノウハウが詰まった平屋となっております。
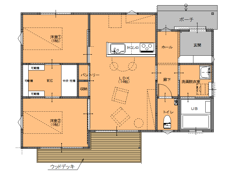
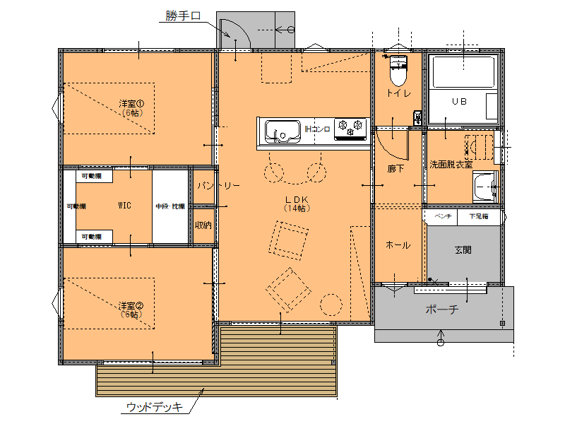
間取り(2LDKタイプ 20.04坪)
間取りのコンセプト
モノにあふれる暮らしに息苦しさを感じる今だからこそ、シンプルでベーシックな平屋。
無駄がなく、すべてに目と手が行き届くことの気持ちよさ。
地面に近い目線で庭の緑に親しみ、豊かな四季の変化を敏感に受け取る。
家と庭を自在に行ったり来たりして暮らしの空間を外にまで広げる。そんな暮らし方を平屋は可能にしてくれる。
階で分断されない小さな平屋では家族の気配を感じやすい。
親のぬくもりを感じながら子どもが育つ環境としても、老いても安心して住み続けられる住処としても、平屋には世代を超えた価値がある。
自然素材の仕上げ
内外部仕上げ
外部仕上げ
〇ゆらぎ張り + ガルバリウム鋼板
※ゆらぎ張りとは?
幅や厚みが少しづつ異なる材料を間隔をあけて貼る。かさはらの家のオリジナルの唯一無二の外壁
内部仕上げ
〇玄関 ①壁:環境壁紙 ②天井:国産杉板張り(無垢)
〇ホール・廊下 ①床:国産杉無垢フローリング ②壁:環境壁紙 ③天井:国産杉板張り(無垢)
〇洗面脱衣室 ①床:国産杉無垢フローリング ②壁:環境壁紙 ③天井:国産杉板張り(無垢)
〇浴室 タカラスタンダードUB リラクシアJタイプ(ホーロー)
〇トイレ ①床:国産杉無垢フローリング ②壁:環境壁紙+腰板壁 ③天井:環境壁紙
〇リビングダイニング ①床:国産杉無垢フローリング ②壁:珪藻土 ③天井:国産杉板張り(無垢)
〇キッチン ①床:国産杉無垢フローリング ②壁:環境壁紙 ③天井:国産杉板張り(無垢) Or 環境壁紙
〇居室 ①床:国産杉無垢フローリング ②壁:環境壁紙 ③天井:環境壁紙
価格 1900万円~(税込) 2LDKタイプ
自然素材にとことんこだわった形で住まい手の健康や暮らし安さ、快適さを追求。さらに今まで500棟近く建てさせていただいた経験を活かし、お客様にリーズナブルな価格の平屋をご提供できるように全社を挙げて頑張りました。
(土地の購入価格は含みません。 薪ストーブ工事、上下水引込み工事、家具・エアコン・カーテン工事は別途になります。)
ゆらぎシリーズは。。
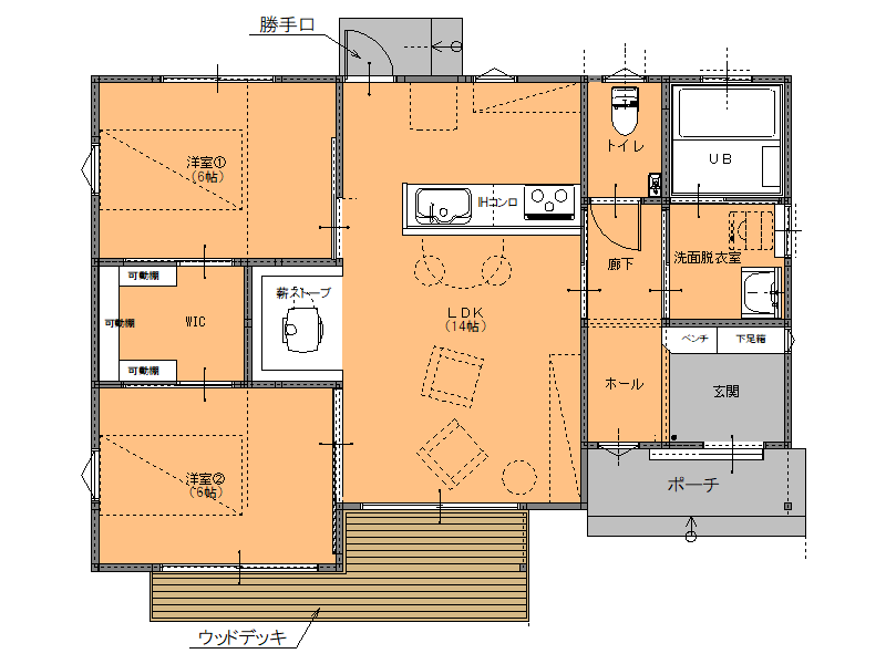
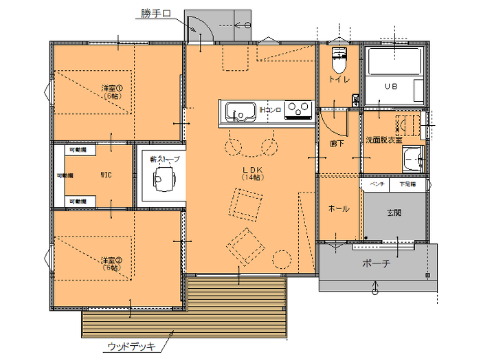
ゆらぎシリーズ 2LDKタイプ以外にも子育て家族にも対応した平屋シリーズも順次発売していく予定です。
お問い合わせ
ゆらぎシリーズに関するお問い合わせはホームページのお問い合わせ又はお電話0577-52-2525までお願いします。






